Van Ravesteyndreef 57

Barendrecht

verkocht onder voorbehoud

verkocht onder voorbehoud

Geinteresseerd?

Omschrijving

Een sfeervolle, uitgebouwde en energiezuinige tussenwoning: deze woning combineert ruimte, comfort, stijl én duurzaamheid op een manier waar je direct blij van wordt. Instapklaar, modern én gelegen op een heerlijke plek in Barendrecht!

YESS! DIT WIL JE NIET MISSEN – DE HIGHLIGHTS OP EEN RIJ:
1. Uitbouw aan de achterzijde voor een extra ruime woonkamer
2. Grote kunststof dakkapel op de tweede verdieping
3. Luxe toiletruimte (2023) in hotel-stijl
4. Airconditioning aanwezig (koelen & verwarmen)
5. Splinternieuwe Remeha cv-ketel uit 2025
6. Energielabel A – comfortabel en toekomstbestendig
7. Ruime open zolder met volop mogelijkheden: kantoor, slaapkamer, hobbyruimte… alles kan!
8. Veel parkeergelegenheid pal voor de deur
9. Heerlijke lichte woonkamer met toegang tot de zonnige tuin
10. Vloerverwarming op de begane grond

Krijg je ook dat YESS-gevoel bij het lezen van deze punten? Dan nodigen wij je heel graag uit voor een bezichtiging van deze leuke woning!

DE LIGGING:
De Ravesteyndreef ligt in de rustige, groene en geliefde woonwijk Bijdorp in Barendrecht. Een buurt met brede lanen, speelveldjes en veel voorzieningen op loop- en fietsafstand. Denk aan supermarkten, scholen, sportfaciliteiten, openbaar vervoer en het gezellige centrum van Barendrecht. Met de auto zit je binnen enkele minuten op de A15 en A29, waardoor je zo richting Rotterdam, de Hoeksche Waard of Dordrecht rijdt.
Parkeren? Ruim voldoende voor de deur, er is altijd plek!

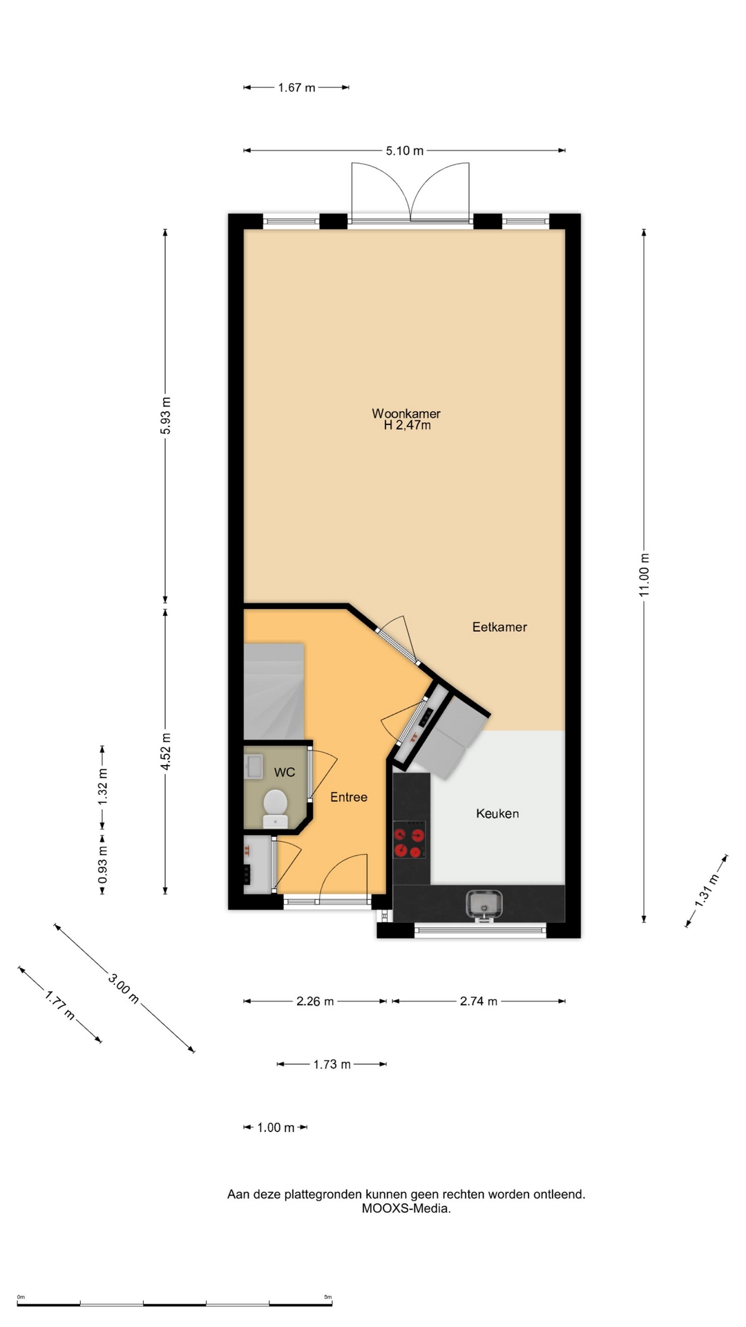
DE INDELING:
Begane grond:
Je komt binnen in de nette hal met de luxe toiletruimte (2023), een echte eyecatcher dankzij de marmerlook wand en het stijlvolle hexagon-tegelwerk. In de hal is er ook een vaste kast met hier de opstelplaats van de cv-ketel (Remeha 2025) en de trap naar de 1e verdieping. Vanuit de hal bereik je de royale, tuingerichte woonkamer. De woonkamer is extra ruim dankzij de uitbouw, heeft grote raampartijen en voelt heerlijk licht en sfeervol. Hier kun je direct je meubels neerzetten en genieten.
Aan de voorzijde van de woning bevindt zich de keuken in L-opstelling, voorzien van diverse inbouwapparatuur. Door de fijne indeling heb je hier verrassend veel werk- én kastruimte. De gehele begane grond is voorzien van vloerverwarming.
Vanuit de woonkamer stap je de onderhoudsvriendelijke achtertuin in, ideaal voor lange zomeravonden. Achterin staat een praktische berging.

Eerste verdieping:
Op deze verdieping vind je twee ruime slaapkamers (voorheen 3) en de badkamer. De grootste slaapkamer ligt aan de achterzijde en is heerlijk licht. De tweede slaapkamer ligt aan de voorzijde. De badkamer is voorzien van een groot hoekbad/douchecombinatie, wastafel, radiator en tweede toilet.

Tweede verdieping:
Hier vind je een hele fijne ruimte met veel mogelijkhden: een grote open zolderverdieping met brede kunststof dakkapel. Deze ruimte kun je helemaal naar wens indelen als bijvoorbeeld één of zelfs 2 slaapkamers, een sportruimte of een werkplek.

DE AFMETINGEN:
Voor de afmetingen en indeling, zie de plattegrond.

DE BIJZONDERHEDEN:
- Nieuwe Remeha cv-ketel (2025);
- Verwarming middels radiatoren;
- Luxe toiletruimte uit 2023;
- Grote kunststof dakkapel;
- Energielabel A;
- Volledige isolatie;
- Airconditioning aanwezig;
- Uitbouw aan de achterzijde;
- Schilderwerk buiten in 2024 uitgevoerd;
- Zonnescherm aanwezig;
- Parkeren voor de deur;
- Bouwjaar: 1998;
- Woonoppervlakte 126 m2;
- Oplevering: in overleg.

De Meetinstructie is gebaseerd op de NEN2580. De Meetinstructie is bedoeld om een meer eenduidige manier van meten toe te passen voor het geven van een indicatie van de gebruiksoppervlakte. De Meetinstructie sluit verschillen in meetuitkomsten niet volledig uit, door bijvoorbeeld interpretatieverschillen, afrondingen of beperkingen bij het uitvoeren van de meting.

Alle verstrekte informatie moet beschouwd worden als een uitnodiging tot het doen van een bod of om in onderhandeling te treden. Er kunnen geen rechten worden ontleend aan deze woninginformatie.

Ben jij net zo enthousiast als wij over deze woning?
Bel, mail of app ons gerust voor een afspraak of laat je gegevens achter via deze site!
Lees meer

Kenmerken

Overdracht

Vraagprijs
€ 540.000,- k.k.
Status
verkocht onder voorbehoud
Aanvaarding
in overleg

Bouw

Soort woning
woonhuis
Soort woonhuis
eengezinswoning
Type woonhuis
tussenwoning
Aantal woonlagen
3
Bouwvorm
bestaande bouw
Bouwjaar
1998
Bouwperiode
1991-2000
Onderhoud binnen
goed
Onderhoud buiten
goed
Dak
zadeldak
Voorzieningen
mechanische ventilatie, tv kabel en airconditioning

Energie

Energielabel
A
Verwarming
c.v.-ketel en vloerverwarming gedeeltelijk
Warm water
c.v.-ketel
C.V.-ketel
gas gestookte combi-ketel uit 2025 van Remeha, eigendom

Oppervlakten en inhoud

Woonoppervlakte
126 m²
Perceeloppervlakte
124 m²
Inhoud
450 m³
Bergruimte oppervlakte
8 m²

Indeling

Aantal kamers
4
Aantal slaapkamers
3

Buitenruimte

Ligging
aan rustige weg en in woonwijk
Tuin
achtertuin met een oppervlakte van 40 m² en is gelegen op het noordwesten

Garage / Schuur / Berging

Schuur/berging
vrijstaand steen

Plattegronden

Locatie

Neem contact met ons op!

Neem contact op
Hoe kunnen wij je helpen?
22:28