Reijerwaardseweg 40

Barendrecht

verkocht onder voorbehoud

verkocht onder voorbehoud

Geinteresseerd?

Omschrijving

Wat een verrassend ruime hoekwoning is dit, een huis vol sfeer, licht en mogelijkheden, mét een heerlijke tuin, groot souterrain en zonnig dakterras waar je meteen dat fijne thuisgevoel krijgt.

YESS! DIT WIL JE NIET MISSEN – DE HIGHLIGHTS OP EEN RIJ:

- Sfeervolle hoekwoning met karakter
- Bouwjaar 1938
- Grote tuin met veel groen en volop privacy
- Openslaande deuren naar een royaal dakterras met veel zon
- Grote souterrainverdieping met volop extra ruimte
- Lichte woonkamer met fijne indeling
- Open keuken in verbinding met de leefruimte
- Twee slaapkamers en een badkamer op de verdieping
- Extra zolderruimte voor opslag
- Gelegen dichtbij vele voorzieningen

Krijg je ook dat YESS-gevoel bij het lezen van deze punten? Dan nodigen wij je heel graag uit voor een bezichtiging van deze leuke woning!

DE LIGGING:
Je woont hier op een centrale plek in Barendrecht, met veel voorzieningen binnen handbereik. Winkels, scholen, openbaar vervoer en uitvalswegen zijn allemaal dichtbij, waardoor je hier heerlijk praktisch woont. Tegelijkertijd geniet je thuis juist van rust, privacy en een fijne groene buitenruimte. Een combinatie die je niet vaak tegenkomt!

DE INDELING:
Je komt de woning binnen via de entree aan de voorzijde. Vanuit hier stap je de woonkamer in, een sfeervolle en lichte ruimte waar je direct ziet hoeveel charme deze woning heeft. Dankzij de hoekligging profiteer je van extra lichtinval en voelt het hier prettig en open aan. De open keuken sluit mooi aan op de woonkamer, waardoor je een gezellige en toegankelijke leef verdieping hebt.

Op de eerste verdieping vind je de overloop, twee slaapkamers en de badkamer. De slaapkamer aan de achterzijde heeft toegang tot het royale dakterras, een heerlijke plek waar je volop van de zon kunt genieten. De tweede slaapkamer is ook fijn van formaat en daardoor geschikt als slaap-, werk- of logeerkamer. De badkamer is praktisch ingedeeld en voorzien van douche, wastafel en toilet.

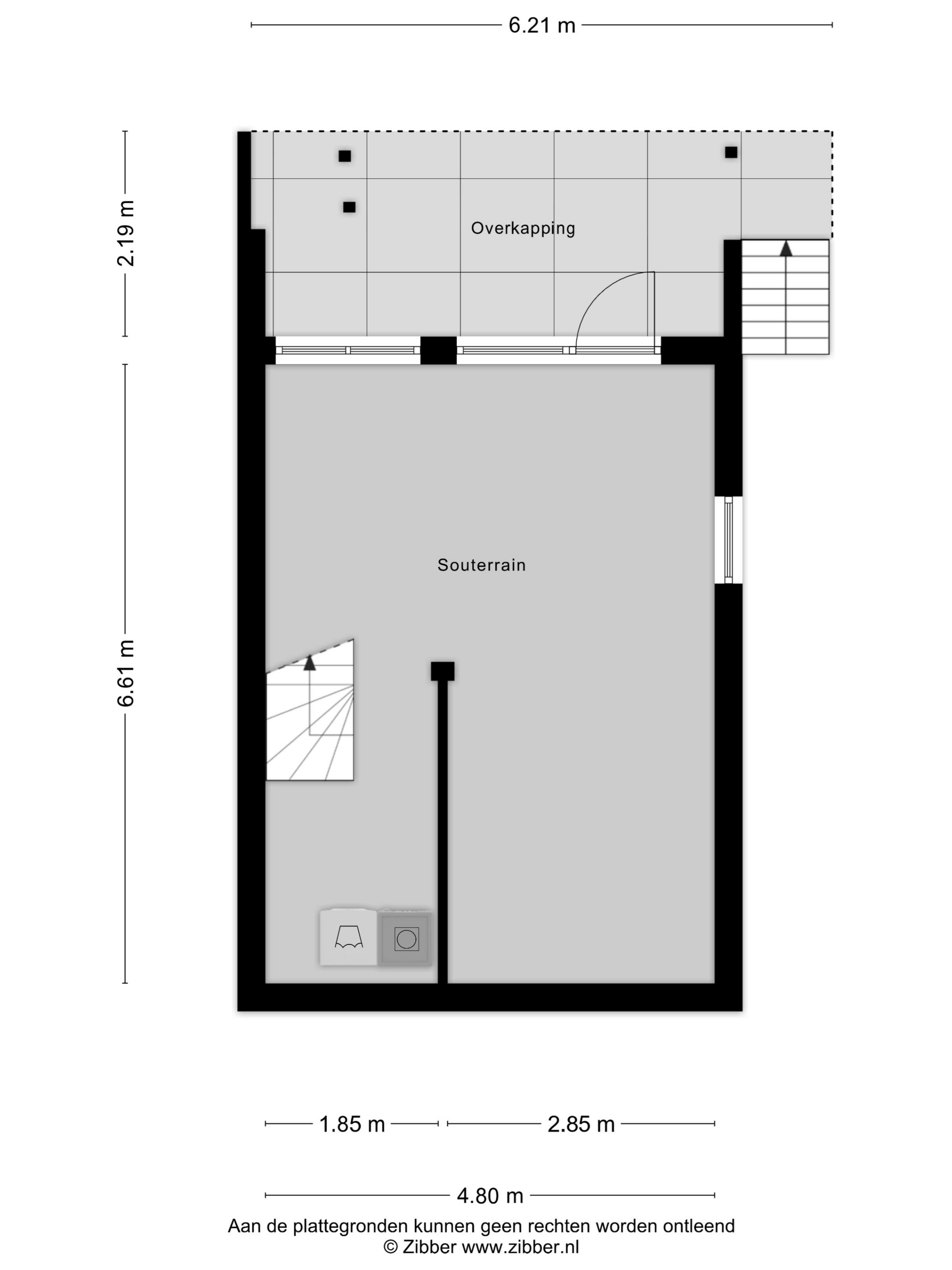
Vanuit de woning bereik je ook het ruime souterrain. Dit is echt een fantastische extra verdieping die je voor van alles kunt gebruiken, zoals opslag, hobbyruimte of werkruimte aan huis. Via de openslaande deuren loop je zo door naar de overkapping en de diepe tuin. Hier geniet je van veel privacy, veel groen en volop mogelijkheden om meerdere fijne zitplekken te creëren.

Tot slot is er nog een zolder aanwezig, ideaal voor het opbergen van spullen die je niet dagelijks nodig hebt. Ook beschik je over een externe berging, wel zo handig!

DE AFMETINGEN:
Voor de afmetingen en indeling, zie de plattegrond.

DE BIJZONDERHEDEN:

- Hoekwoning met veel lichtinval
- Groot souterrain met veel gebruiksmogelijkheden
- Royale tuin met veel privacy
- Groot dakterras met veel zon
- Externe berging aanwezig
- Centrale ligging nabij winkels, scholen, openbaar vervoer en uitvalswegen
- Oppervlakte ca. 100 m² Hiervan is de circa 35m2 van het souterrain officieel overig inpandige ruimte i.v.m. de plafondhoogte. Deze is ruim 1.90 en telt daardoor officieel niet mee als woonoppervlakte.
- Gebouwgebonden buitenruimte ca. 26,2 m²
- Externe bergruimte ca. 5,8 m²
- Energielabel G
- Bouwjaar 1938
- Oplevering in overleg

De Meetinstructie is gebaseerd op de NEN2580. De Meetinstructie is bedoeld om een meer eenduidige manier van meten toe te passen voor het geven van een indicatie van de gebruiksoppervlakte. De Meetinstructie sluit verschillen in meetuitkomsten niet volledig uit, door bijvoorbeeld interpretatieverschillen, afrondingen of beperkingen bij het uitvoeren van de meting.
Alle verstrekte informatie moet beschouwd worden als een uitnodiging tot het doen van een bod of om in onderhandeling te treden. Er kunnen geen rechten worden ontleend aan deze woninginformatie.

Ben jij net zo enthousiast als wij over deze woning? Bel, mail of app ons gerust voor een afspraak of laat je gegevens achter via deze site!
Lees meer

Kenmerken

Overdracht

Vraagprijs
€ 375.000,- k.k.
Status
verkocht onder voorbehoud
Aanvaarding
in overleg

Bouw

Soort woning
woonhuis
Soort woonhuis
eengezinswoning
Type woonhuis
hoekwoning
Aantal woonlagen
3
Kwaliteit
normaal
Bouwvorm
bestaande bouw
Bouwjaar
1938
Bouwperiode
1931-1944
Onderhoud binnen
goed
Onderhoud buiten
goed
Dak
zadeldak

Energie

Energielabel
G
Verwarming
c.v.-ketel
Warm water
c.v.-ketel
C.V.-ketel
Nefit (gas gestookt combiketel, uit 2015, eigendom)

Oppervlakten en inhoud

Woonoppervlakte
100 m²
Perceeloppervlakte
128 m²
Inhoud
352 m³
Bergruimte oppervlakte
5 m²
Buitenruimte oppervlakte
26 m²

Indeling

Aantal kamers
4
Aantal slaapkamers
2

Buitenruimte

Tuin
achtertuin met een oppervlakte van 61 m² en is gelegen op het oosten

Garage / Schuur / Berging

Schuur/berging
vrijstaand hout

Plattegronden

Locatie

Neem contact met ons op!

Neem contact op
Hoe kunnen wij je helpen?
15:05