Nieuwedijk 30

Pernis Rotterdam

beschikbaar

€ 545.000,- k.k.

Geinteresseerd?

Omschrijving

Een unieke kans: een karakteristieke 2-onder-1 kap woning die momenteel compleet wordt vernieuwd tot een moderne en energiezuinige woning. Straks woon je hier in een luxe afgewerkt huis met vier ruime slaapkamers en energielabel A!

YESS! DIT WIL JE NIET MISSEN – DE HIGHLIGHTS OP EEN RIJ:
1. Charmante 2-onder-1 kap woning met karakter en uitstraling
2. Volledig en hoogwaardig gerenoveerd
3. Energielabel A dankzij uitgebreide isolatie, nieuwe CV-ketel en zonnepanelen
4. Luxe eilandkeuken die het hart van de woning vormt
5. Luxe badkamer met ligbad, douche, wastafel en toilet
6. Maar liefst vier ruime slaapkamers verdeeld over twee verdiepingen
7. Nieuwe achterpui met veel licht en een fijne verbinding met de tuin
8. Alle installaties, elektra en afwerking volledig vernieuwd
9. Voorzien van 10 zonnepanelen voor lage energiekosten
10. Instapklaar wonen zonder verbouwen – alles is straks nieuw!

Krijg je ook dat YESS-gevoel bij het lezen van deze punten? Dan nodigen wij je heel graag uit voor een bezichtiging van deze leuke woning!

De woning wordt momenteel volledig gerenoveerd en is binnenkort al te bezichtigen, zodat je alvast een goede indruk kunt krijgen van de ruimte en mogelijkheden. De getoonde impressies en plattegronden geven een eerste beeld van de woning. Voor meer informatie en een uitgebreide brochure kun je uiteraard contact met ons opnemen.

DE LIGGING:
Deze woning ligt in het gezellige dorp Pernis, een plek waar je geniet van een rustige en gemoedelijke woonomgeving met een echte dorpssfeer. Tegelijkertijd woon je hier verrassend centraal ten opzichte van Rotterdam en andere steden. In de directe omgeving vind je winkels, een basisschool, sportverenigingen en openbaar vervoer. Metrostation Pernis ligt op korte afstand en brengt je in enkele minuten naar Rotterdam en de watertaxi ligt op slechts een minuut lopen! Ook de uitvalswegen A4 en A15 zijn snel bereikbaar, waardoor je eenvoudig richting de stad of andere regio’s reist.

Voor ontspanning hoef je niet ver: langs de oevers van de Nieuwe Maas kun je heerlijk wandelen of fietsen terwijl je geniet van het uitzicht op de indrukwekkende scheepvaart richting de Rotterdamse haven. Pernis combineert dus rust, natuur en bereikbaarheid op een unieke manier.

DE INDELING:
Begane grond:
Je komt de woning binnen in de hal met toegang tot het toilet, de meterkast, de trap naar de eerste verdieping en de woonkamer.

De woonkamer wordt een heerlijke leefruimte met veel licht dankzij de grote raampartijen en de nieuwe pui aan de achterzijde van de woning. Hierdoor ontstaat een prachtige verbinding met de tuin en voelt de ruimte extra ruim en licht aan.

Aan de voorzijde bevindt zich de luxe eilandkeuken die straks het middelpunt van het huis vormt. Hier kun je uitgebreid koken terwijl je in contact blijft met familie of vrienden. De keuken wordt uitgevoerd met moderne inbouwapparatuur en veel werk- en bergruimte.

Eerste verdieping:
Op de eerste verdieping kom je op de ruime overloop. Hier is genoeg ruimte voor een leuke werkplek bijvoorbeeld.
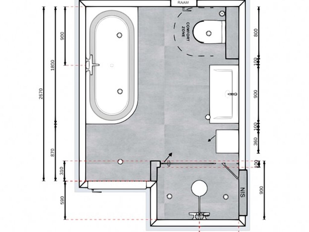
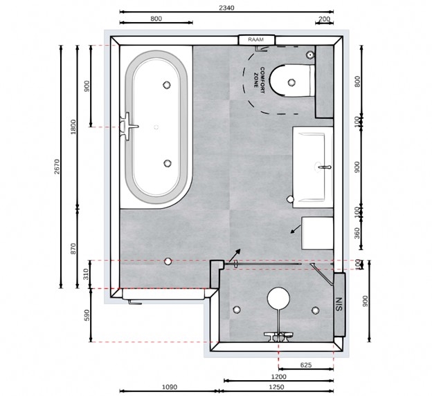
Via de overloop is er toegang tot de twee ruime slaapkamers en de luxe badkamer. De badkamer wordt compleet nieuw uitgevoerd en voorzien van een ligbad, douche, wastafel en een tweede toilet. Een stijlvolle en comfortabele ruimte waar je de dag ontspannen kunt beginnen of afsluiten.

Tweede verdieping:
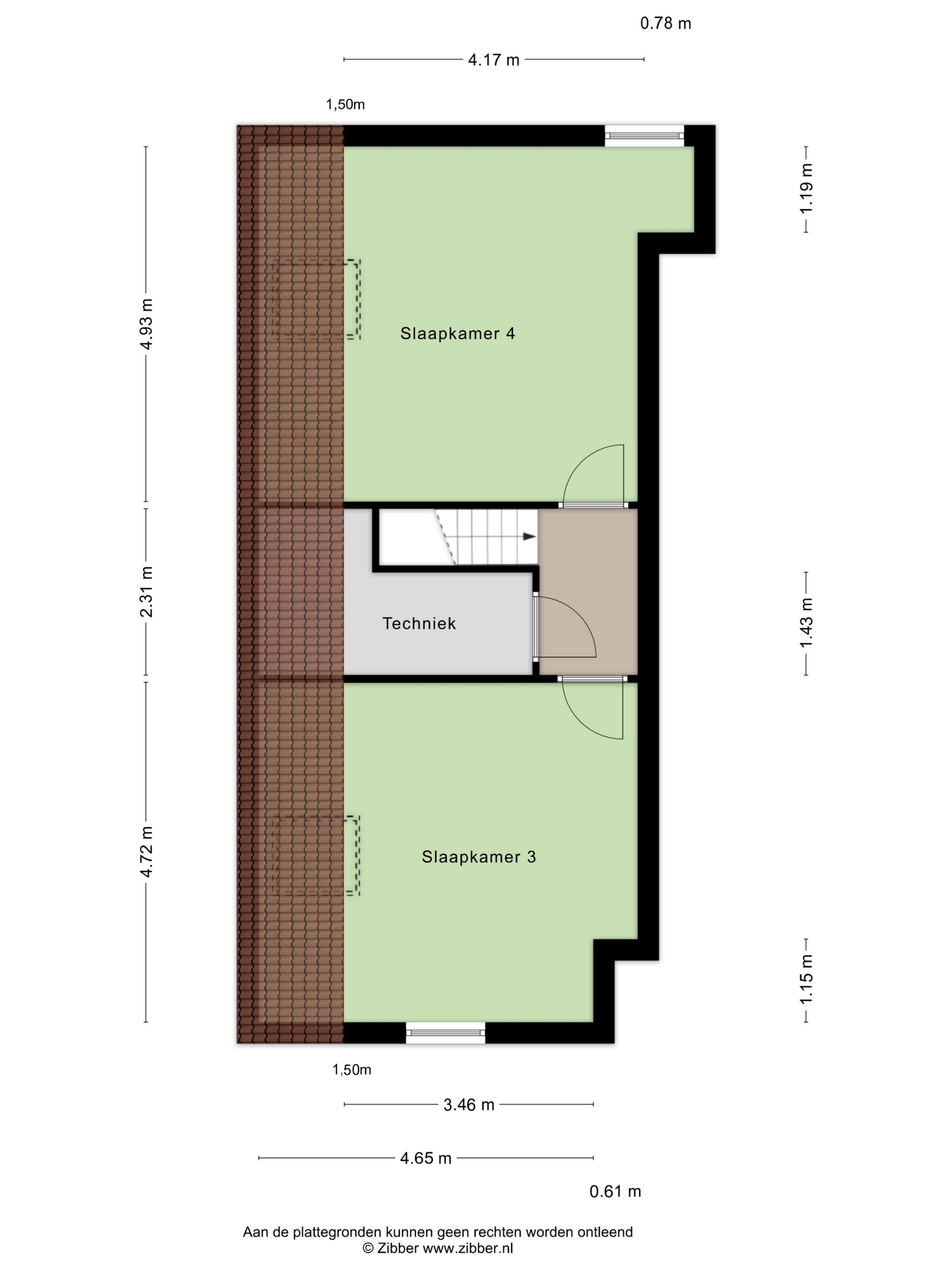
Ook op de tweede verdieping vind je twee ruime slaapkamers. Deze kamers zijn volwaardig en ideaal te gebruiken als slaapkamer, werkkamer of hobbyruimte. Op deze verdieping bevindt zich tevens de technische ruimte met de installaties van de woning. Hier komt een nieuwe hybride-ready CV-ketel.

DE OPLEVERING:
De woning wordt momenteel intensief gerenoveerd en zal rond de zomer van 2026 volledig luxe en instapklaar worden opgeleverd. Tijdens deze renovatie wordt de woning vrijwel volledig vernieuwd en verduurzaamd, waardoor je straks profiteert van het comfort van een nieuwe woning met de charme van een karakteristiek huis.

Er wordt opgeleverd met de volgende kenmerken:
- Houten kozijnen met grotendeels HR++ glas
- Nieuwe achterpui naar de tuin
- Deels nieuwe kozijnen
- Gevelisolatie rondom de woning
- Dakisolatie
- De balken en verdiepingsvloeren zijn vernieuwd en gesoleerd
- Alle elektra, leidingwerk en riool zijn vernieuwd
- Alle radiatoren zijn vernieuwd
- Nieuwe cv-ketel (2026), hybride ready
- Vloerverwarming op de begane grond
- Nieuwe elektra en groepenkast
- Mechanische ventilatie
- 10 zonnepanelen
- Gestucte wanden en plafonds
- Nieuwe vloerafwerking
- Luxe eilandkeuken, compleet met inbouwapparatuur
- Luxe badkamer met ligbad, douche, wastafel en toilet
- Waar nodig zijn balken, elektra en riool volledig vernieuwd
Kortom: een woning die technisch én qua afwerking volledig klaar is voor de toekomst.

DE AFMETINGEN:
Voor de afmetingen en indeling, zie de plattegrond.

DE BIJZONDERHEDEN:
- Volledig intensief gerenoveerde woning
- Energielabel A
- Vier ruime slaapkamers
- Tuin aan te leggen, deze ligt op het westen
- Bouwjaar oorspronkelijk 1870
- Oplevering circa zomer 2026

De Meetinstructie is gebaseerd op de NEN2580. De Meetinstructie is bedoeld om een meer eenduidige manier van meten toe te passen voor het geven van een indicatie van de gebruiksoppervlakte. De Meetinstructie sluit verschillen in meetuitkomsten niet volledig uit, door bijvoorbeeld interpretatieverschillen, afrondingen of beperkingen bij het uitvoeren van de meting.

Alle verstrekte informatie moet beschouwd worden als een uitnodiging tot het doen van een bod of om in onderhandeling te treden. Er kunnen geen rechten worden ontleend aan deze woninginformatie.

Ben jij net zo enthousiast als wij over deze woning? Bel, mail of app ons gerust voor een afspraak of laat je gegevens achter via deze site!
Lees meer

Kenmerken

Overdracht

Vraagprijs
€ 545.000,- k.k.
Status
beschikbaar
Aanvaarding
in overleg

Bouw

Soort woning
woonhuis
Soort woonhuis
eengezinswoning
Type woonhuis
2-onder-1-kapwoning
Aantal woonlagen
3
Kwaliteit
luxe
Bouwvorm
bestaande bouw
Bouwjaar
1870
Bouwperiode
-1906
Onderhoud binnen
uitstekend
Onderhoud buiten
goed
Dak
zadeldak
Voorzieningen
mechanische ventilatie, tv kabel, zonnecollectoren en dakraam

Energie

Energielabel
A
Verwarming
c.v.-ketel en vloerverwarming gedeeltelijk
Warm water
c.v.-ketel
C.V.-ketel
gas gestookte combi-ketel uit 2026 van Hybride ready, eigendom

Oppervlakten en inhoud

Woonoppervlakte
155 m²
Perceeloppervlakte
122 m²
Inhoud
530 m³
Inpandige ruimte oppervlakte
5 m²

Indeling

Aantal kamers
5
Aantal slaapkamers
4

Buitenruimte

Ligging
aan rustige weg en in woonwijk
Tuin
achtertuin met een oppervlakte van 30 m² en is gelegen op het westen

Plattegronden

Locatie

Downloads

Neem contact met ons op!

Neem contact op
Hoe kunnen wij je helpen?
13:20