Hooftstraat 6

Dordrecht

beschikbaar

€ 1.450,- p/m

Geinteresseerd?

Omschrijving

Moderne en nieuw afgewerkte tussenwoning nabij het stadscentrum van Dordrecht te huur! Deze woning is recent gerenoveerd en zeer netjes afgewerkt. De woning heeft een lichte doorzon woonkamer met moderne keuken met inbouwapparatuur, een modern afgewerkte badkamer, twee ruime slaapkamers en een aangebouwde berging! Ook is de woning voorzien van kruipruimte-isolatie, dubbel glas en deels HR++ glas.

De woning is centraal gelegen in de levendige wijk Oud-Krispijn, vlak achter de Viottakade en op slechts een paar minuten fietsen van het stadscentrum en NS-station. In de nabije omgeving zijn scholen, kindervang, een park en diverse supermarkten. Het nabij gelegen centrum van Dordrecht is super gezellig met veel horeca, leuke winkels en charmante historische panden en grachtjes. Ook de Dordtse Biesbosch is op fietsafstand van de woning.

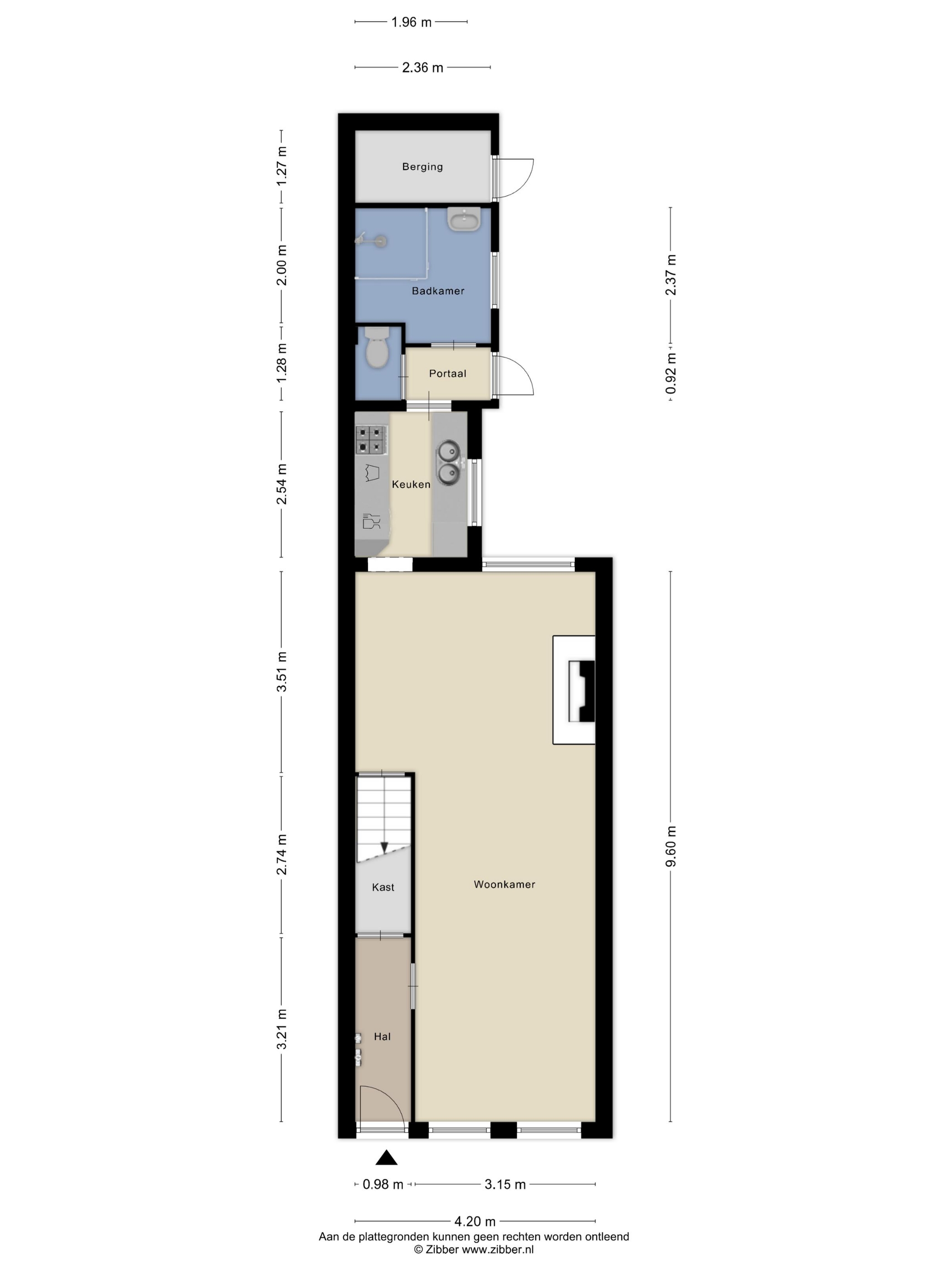
INDELING:
Begane grond:
De woning heeft nog een authentieke entree, hal met meterkast en een provisieruimte onder de trap. Vanuit de hal is er toegang naar de strak afgewerkte woonkamer met een vernieuwde keuken, met inductiekookplaat, combi-oven, afzuigkap en koel-vriescombinatie.
Vanuit de keuken is er toegang tot het toilet en de modern afgewerkte badkamer welke is voorzien van inbouwspotjes, regendouche en wastafel met bad-meubel. Er is een achtertuin met een aangebouwde berging.

Eerste verdieping:
Met de trap kom je in een ruime hal op de verdieping. De eerste verdieping heeft twee ruime slaapkamers waarvan één is gelegen aan de voorzijde en één is gelegen aan de achterzijde van de woning. De overloop is voorzien van een lichtkoepel waardoor er veel lichtinval is.

Bijzonderheden:
- Kale huur €1.450,-- per maand;
- Huurprijs is exclusief gas, water en elektra;
- Borg 1 maand huur;
- Inkomenseis minimaal 2,5x de huur als netto inkomen;
- Tijdelijk contract op basis van de leegstandswet, maximaal 5 jaar bij aanvang huur;
- De woning blijft in de verkoop staan, huurder dient medewerking te verlenen aan verkoop bezichtigingen;
- Verhuur aan 2 studenten of young proffesionals kan;
- Geen huisdieren toegestaan;
- Oplevering per direct mogelijk;
- Oplevering zonder meubilair;
- Gelegen op eigen grond;
- Geheel voorzien van dubbelglas en deels HR++ beglazing en houten kozijnen;
- Kruipruimte geïsoleerd;
- HR combiketel uit 2021.

Verliefd geworden op deze prachtige afgewerkte woning? Neem dan vrijblijvend contact op met ons kantoor voor het maken van een afspraak met een van onze makelaars!

De Meetinstructie is gebaseerd op de NEN2580. De Meetinstructie is bedoeld om een meer eenduidige manier van meten toe te passen voor het geven van een indicatie van de gebruiksoppervlakte. De Meetinstructie sluit verschillen in meetuitkomsten niet volledig uit, door bijvoorbeeld interpretatieverschillen, afrondingen of beperkingen bij het uitvoeren van de meting.

Alle verstrekte informatie moet beschouwd worden als een uitnodiging. Er kunnen geen rechten worden ontleend aan deze woninginformatie.
Lees meer

Kenmerken

Overdracht

Huurprijs
€ 1.450,- p/m gestoffeerd
Status
beschikbaar
Aanvaarding
per direct

Bouw

Soort woning
woonhuis
Soort woonhuis
eengezinswoning
Type woonhuis
tussenwoning
Aantal woonlagen
2
Kwaliteit
normaal
Bouwvorm
bestaande bouw
Bouwjaar
1906
Bouwperiode
1906-1930
Onderhoud binnen
goed
Onderhoud buiten
goed
Dak
zadeldak
Keurmerken
energie Prestatie Advies
Voorzieningen
tv kabel

Energie

Energielabel
D
Verwarming
c.v.-ketel
Warm water
c.v.-ketel
C.V.-ketel
gas gestookte combi-ketel uit 2020 van Remeha, eigendom

Oppervlakten en inhoud

Woonoppervlakte
90 m²
Perceeloppervlakte
78 m²
Inhoud
326 m³
Inpandige ruimte oppervlakte
3 m²

Indeling

Aantal kamers
3
Aantal slaapkamers
2

Buitenruimte

Ligging
aan park en in woonwijk
Tuin
achtertuin met een oppervlakte van 27 m² en is gelegen op het zuidoosten

Garage / Schuur / Berging

Schuur/berging
aangebouwd steen

Plattegronden

Locatie

Neem contact met ons op!

Neem contact op
Hoe kunnen wij je helpen?
16:42